178.199,10 metres quadrats. Aqueixa serà la superfície total amb la qual comptarà el parc de Benicalap una vegada es faça realitat l'ampliació. Aquest projecte comptarà amb un pressupost inicial de 9 milions d'euros que augmentarà a quasi el doble amb els diners que es destinarà a la rehabilitació del patrimoni històric de la zona. Per tant, l'ampliació integrarà espais lúdics d'oci amb zones verdes i d'horta i posarà en valor elements històrics com les alqueries de la Torre o del Moro.
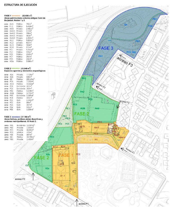
La regidora de Desenvolupament Urbà, Sandra Gómez, ha presentat hui en roda de premsa el projecte d'ampliació del parc de Benicalap la redacció del qual ha sigut a càrrec del reconegut arquitecte Miguel del Rey, també present. Segons la informació aportada, aquesta actuació suposa una aportació de 113.646,73 metres quadrats més al parc de Benicalap, quasi el doble de la superfície actual. Això sí, el projecte està dividit en tres fases d'actuació, que s'aniran executant de manera consecutiva.
Pel que respecta als terminis d'execució, la vicealcaldessa de València ha afirmat que “aquest és més un projecte a mitjà termini, per la qual cosa és difícil donar una data, però esperem desenvolupar-lo en el que queda de legislatura i la següent”. Una de les majors dificultats amb la qual s'està trobant el consistori són les expropiacions que han de fer per a adquirir alguns dels terrenys necessaris, encara que la majoria d'ells corresponen a l'última fase.
“Per a nosaltres aquest és un projecte estratègic perquè correspon a la iniciativa d'una València polièdrica. Aquest serà un dels grans parcs de la ciutat una vegada ho tinguem desenvolupat. Volem que la ciutat estiga envoltada per un gran pulmó verd i que compte amb espais amables, verds i que neutralitzen la petjada de carboni i que puga fer de la ciutat un entorn més saludable, amb una ciutat més respirable i amb emissions zero”, ha expressat la responsable d'Urbanisme.
La primera fase d'aquest Pla Director contempla una sèrie d'actuacions en la zona confrontant a l'actual parc de Benicalap. Aquesta se centra en la part històrica i del patrimoni “tan vinculat a l'horta i que té importants alqueries i espais que volem rehabilitar", tal com ha apuntat Gómez. Compta amb dos milions d'euros de pressupost, al que caldria sumar la inversió en la rehabilitació d'edificis històrics per un valor aproximat de set milions.

Seguidament, la segona fase, amb un pressupost d'1,5 milions, té més a veure amb l'horta. “És una fase molt important perquè és la que ens comença a fer de transició entre la ronda i el barri de Benicalap. En aquesta renaturalitzaran les vores , ja que són espais degradats, abandonats i volem renaturalitzar perquè hi haja una transició amable. Es recuperaran senderes tradicionals d'horta i es faran camins que connectaran la zona urbana amb el parc”, ha explicat la portaveu socialista.
Finalment, la tercera fase (pressupostada quasi 2,5 milions) consta de dotacions més tradicionals com és el cas de zones verdes, zones infantils, equipaments esportius i una àmplia zona d'oci i trobada per a millorar “la qualitat dels veïns i veïnes del barri”, assenyala la vicealcaldessa. Hi haurà per tant, pistes multiús de futbol i bàsquet, així com un “skate park” en la zona alta, un espai en el qual hi ha prou soroll, ja que un pas de nivell de l'autovia passa per ací.
La zona en la qual es durà a terme aquesta ampliació està posicionada en un enclavament molt pròxim a l'autovia, per la qual cosa el soroll podria ser un problema. Preguntat sobre aquesta qüestió, Miguel del Rei ha respost que hi haurà una tanca acústica i una massa arbòria que “absorbisca el soroll” i que permetrà també “tapar la visió”, ja que hi hauran molts arbres a la vora de l'autovia.
Aquesta actuació està inclosa en la intenció de l'Ajuntament per fer d'una València la ciutat envoltada de la qual per grans bulevards verds. Aquesta ampliació del parc de Benicalap en la zona nord de la ciutat se sumarà a altres grans projectes de parcs com el Parc de Desembocadura, en la zona sud, el parc Lineal en la zona oest, el "desitjat parc de Benimaclet", segons Gómez, en la zona aquest, i el parc Central.

Projecció de la futura ampliació del parc de Benicalap


